Tuinontwerper
Welkom bij Studio Creation! Ik ontwerp unieke buitenruimtes voor particuliere en zakelijke klanten. Van stadstuinen en villatuinen tot grotere bedrijfstuinen: ik zorg voor een passend en sprekend ontwerp dat aansluit bij jouw wensen.
Een gedeelde visie op buitenleven en natuur is essentieel. Zoek je een volledig betegelde tuin met een stukje kunstgras, dan ben je bij Studio Creation niet aan het juiste adres. De liefde voor een groene, levende buitenruimte met een buitenbeleving staat centraal. Samen vertalen we jouw verhaal en wensen naar een doordacht en inspirerend ontwerp wat zorgt voor een duurzame leefomgeving.
Als tuinontwerper en beplantingsadviseur haal ik het maximale uit elke tuin of zakelijke buitenruimte. In mijn ontwerpen zie je veel groen en kleur in elk seizoen, altijd met oog voor duurzaamheid en onderhoudsvriendelijkheid.
Een terrein- of tuinontwerp is soms een complexe puzzel, maar ik help je die perfect te leggen: een tuin die voelt als een extra leefruimte waarin je ontspannen kunt genieten of het nu in de pauze is tijdens werktijd of juist in je eigen tuin na werktijd.
Mijn stijl kenmerkt zich door sterke, soms organische lijnen en een tijdloos ontwerp, gecombineerd met een praktische invulling. Voor de beplanting kies ik levendige, natuurlijke combinaties met mooie silhouetten en structuren die je naar buiten lokken.
Ik woon in Woerden en ontwerp tuinen door heel Nederland. Samen maken we van jouw buitenruimte een plek waar je elke dag van geniet!
Aanbod
Studio Creation levert een totaalconcept voor buitenruimtes. Ik maak beplantingsconcepten op maat, ontwerp een groene identiteit voor bedrijven, scholen en zorginstellingen, werk samen met gemeentes om zo veel mogelijk tuinen te vergroenen door middel van advies en ontwerp. Het soort tuin of terrein of grootte maakt daarbij niet uit. Of het nu gaat om een kleine stadstuin of een groot landelijk perceel, een aanpassing van een reguliere voortuin of de herinrichting van een kantoor- of zorgomgeving: ik kan de buitenruimte een enorme upgrade geven met mijn ontwerpen.
Een goede samenwerking tussen degene die ontwerpt en realiseert is essentieel. Daarom blijf ik als tuinarchitect graag na de ontwerpfase betrokken bij de aanleg en inrichting van de tuin en werk ik samen met betrouwbare hoveniers. Zelfs als de tuin eenmaal gerealiseerd is, doe ik graag een korte check up om te zien of de tuin zich goed ontwikkeld en de beplanting goed is aangeslagen.
Tuinadvies
Je tuin anders inrichten maar kom je er zelf niet uit? Wil je advies voor tuinstyling? Ik kom drie uur bij je thuis langs en ga samen met jou de tuin in en geef deskundig advies over de optimale inrichting, indeling en aankleding van je tuin. Ik beantwoord je vragen over het verbeteren van de tuininrichting en uitstraling. Ter plekke wordt een basisschets gemaakt van de optimale indeling daarna kan je zelf verder aan de slag.
Voor €195 Actieprijs! Nu €150,- (excl. BTW)
Totaal plan
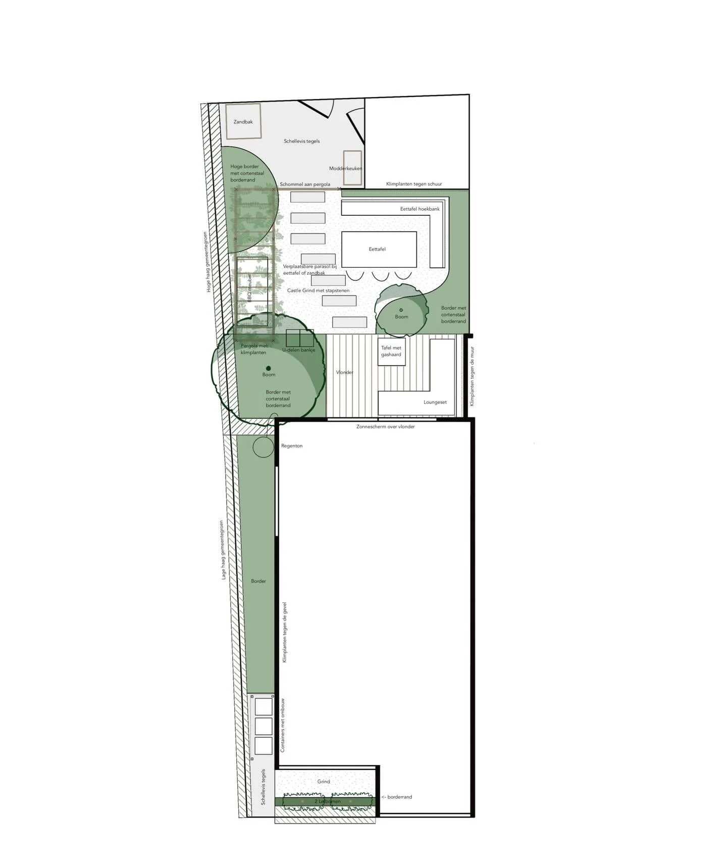
Bij de herinrichting van je tuin adviseer ik altijd een volledig uitgewerkt Totaalplan, waarin je tuinontwerp, beplantingsplan en verlichtingsplan volledig op elkaar zijn afgestemd. Dit plan biedt zekerheid, begeleiding en een compleet ontwerp voor een zorgeloze uitvoering. Je ontvangt een gedetailleerd ontwerp dat alle aspecten van je buitenruimte behandelt, van sfeer en materialen tot de indeling en uitvoering.
Wat je ontvangt:
Inventarisatie van je wensen en eisen van de nieuwe tuin. Inmeten tuin en een analyse.
Moodboards: sfeer, materialen en beplantingsstijl
2D-plattegrond op schaal in kleur en zwart-wit
Materialenplan
Matenplan voor de uitvoering
Beplantingsplan (zie ook Borderplan)
Verlichtingsplan
Totaalplan als brochure digitaal en geprint
Prijs: vanaf €1190
* Prijs gebaseerd op de grootte van de tuin en excl. BTW.
Basisplan
Het Basisplan is ideaal voor wie sneller een tuinontwerp op afstand wil ontvangen. Ik maak gebruik van door jou aangeleverde informatie, zoals de maten van je tuin, een ingevulde vragenformulier en foto’s en filmpjes van de tuin. Op basis hiervan werk ik aan je ontwerp en lever ik een digitaal 2D tuinontwerp. Er is geen feedbackmoment, zodat je sneller je ontwerp ontvangt en direct aan de slag kunt.
Wat je ontvangt:
Vragenformulier voor wensen, eisen en voorkeuren
Instructies voor het opmeten van je tuin
Tuinontwerp in 2D, digitaal geleverd (PDF)
Moodboard met sfeer en materialen
Wat is het verschil met een totaalplan? Bij het Totaalplan kom ik langs op locatie, is er ruimte voor feedback op het ontwerp en maak ik een uitgebreid beplantingsplan en verlichtingsplan.
Prijs: vanaf €700
* Prijs gebaseerd op de grootte van de tuin en excl. BTW.
Plantplan
Een tuin of buitenruimte komt pas écht tot leven met een doordacht Plantplan. Planten zorgen voor sfeer, biodiversiteit en een prettige beleving. Thuis, op kantoor of in een openbare ruimte. Ze creëren in elk seizoen een aantrekkelijke omgeving.
Of je nu je bestaande tuin wilt vernieuwen of je zakelijke terrein een groene upgrade wilt geven: een professioneel beplantingsplan is onmisbaar.
Wat je ontvangt:
Moodboards: sfeerbeelden, bloeiwijze en beplantingsstijl
Bloeigrafiek, onderhoudsplan en bestellijst
Plattegrond: duidelijke indeling welke plant waar komt
Digitaal beplantingsplan (PDF)
Wil je het hele jaar door een inspirerende, levendige buitenruimte? Dan begint dat met een sterk borderplan! Ook is het mogelijk dat ik de gekozen beplanting lever of uitzet op locatie tegen meerprijs.
Prijs: vanaf €350
* Prijs gebaseerd op het aantal m² aan borders en excl. BTW.
Tuinen zijn er om in te leven! Maak ze dus tot je thuis.
Maak je buitenruimte sfeervol, groen én praktisch!
Prijzen tuinontwerp en beplantingsplan
Waarom kiezen voor een Totaal Plan?
Of je nu een rustige tuin zoekt om thuis van te genieten of een zakelijke buitenruimte wilt creëren die bijdraagt aan de werksfeer en uitstraling, een goed tuinontwerp en beplantingsplan zorgt ervoor dat jouw buitenruimte precies die sfeer krijgt die je zoekt. Het helpt je de ruimte optimaal te benutten, zodat je kunt genieten van groen, rust en de natuurlijke schoonheid van je omgeving. Een doordacht ontwerp voorkomt dat je tijd en geld verspilt aan verkeerde keuzes en zorgt ervoor dat alles op de juiste plek valt. Zo creëer je een tuin die niet alleen vandaag, maar ook in de toekomst blijft groeien en bloeien.
De kosten voor een volledig tuinontwerp zijn afhankelijk van de grootte van het terrein en is excl. BTW:
0-50 m²: €1190
50-100 m²: €1540
100-250 m²: €2300
Voor grotere tuinen neem gerust contact met mij op voor een op maat gemaakte prijs.
Deze investering zorgt voor een tuin of buitenruimte die niet alleen een plek van rust en schoonheid wordt, maar ook bijdraagt aan de sfeer en uitstraling van je huis of bedrijf. Het is een kleine prijs voor een ruimte die voor jou (en eventueel je klanten, gasten of medewerkers) de juiste energie uitstraalt. Een tuin die je elke dag opnieuw inspireert – dat is waar je investering in een goed ontwerp zich in de toekomst dubbel en dwars terugbetaalt.
Werkwijze
In mijn ontwerpen zoek ik altijd naar de juiste afstemming met persoonlijke wensen en zaken zoals de directe omgeving en de uitstraling van de woning of het gebouw. Elk project begint daarom voor mij met een goede inventarisatie, die ik vertaal in een op maat gemaakt tuinontwerp en/of beplantingsplan. Tijdens het ontwerpen stem ik goed af op wat de klant graag wil, met het gewenste resultaat: een tuin waar de klant gelukkig van wordt.
In mijn manier van werken blijf ik altijd in nauw contact met de klant. Daarbij werk ik bij het maken van een tuinontwerp over het algemeen stapsgewijs volgens een duidelijk stramien. Allereerst kennis maken, wensen en eisen van de nieuwe tuin bespreken, de tuin analyseren en inmeten. Daarna ga ik het conceptontwerp uitwerken; afstemming en eventuele aanpassingen op het conceptontwerp en tot slot het maken van een matenplan voor de hovenier en de oplevering van het definitieve ontwerp digitaal en hardcopy. Nadat het ontwerp definitief is wordt er desgewenst contact gelegd met (samenwerkende) hoveniers voor het maken van een offerte. Ondertussen ga ik aan de slag met het maken van een beplantingsplan en na de aanleg kan ik planten bij jullie thuis afleveren.
Waarom je tuin laten ontwerpen?
-

1. Creëren van een mooie, sfeervolle en persoonlijke tuin
-

2. Optimalisatie van de beschikbare buitenruimte
-

3. Inzet van mijn professionele kennis en creativiteit
-

4. Waardevermeerdering van huis of gebouw
-

5. Borging duurzaamheid en onderhoudsgemak
-

6. Tijdsbesparing door uitbesteding



